EGHW De Poort
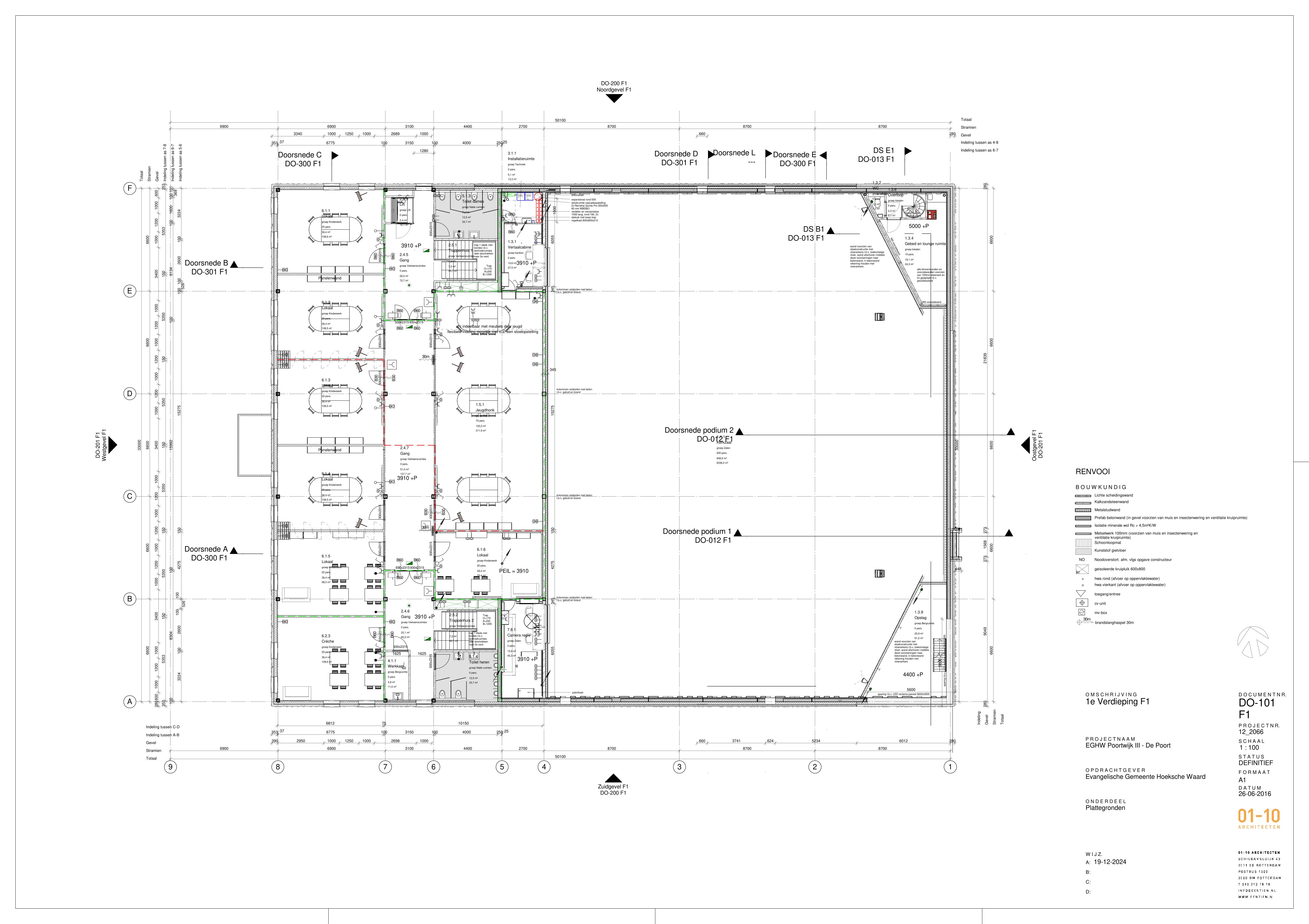
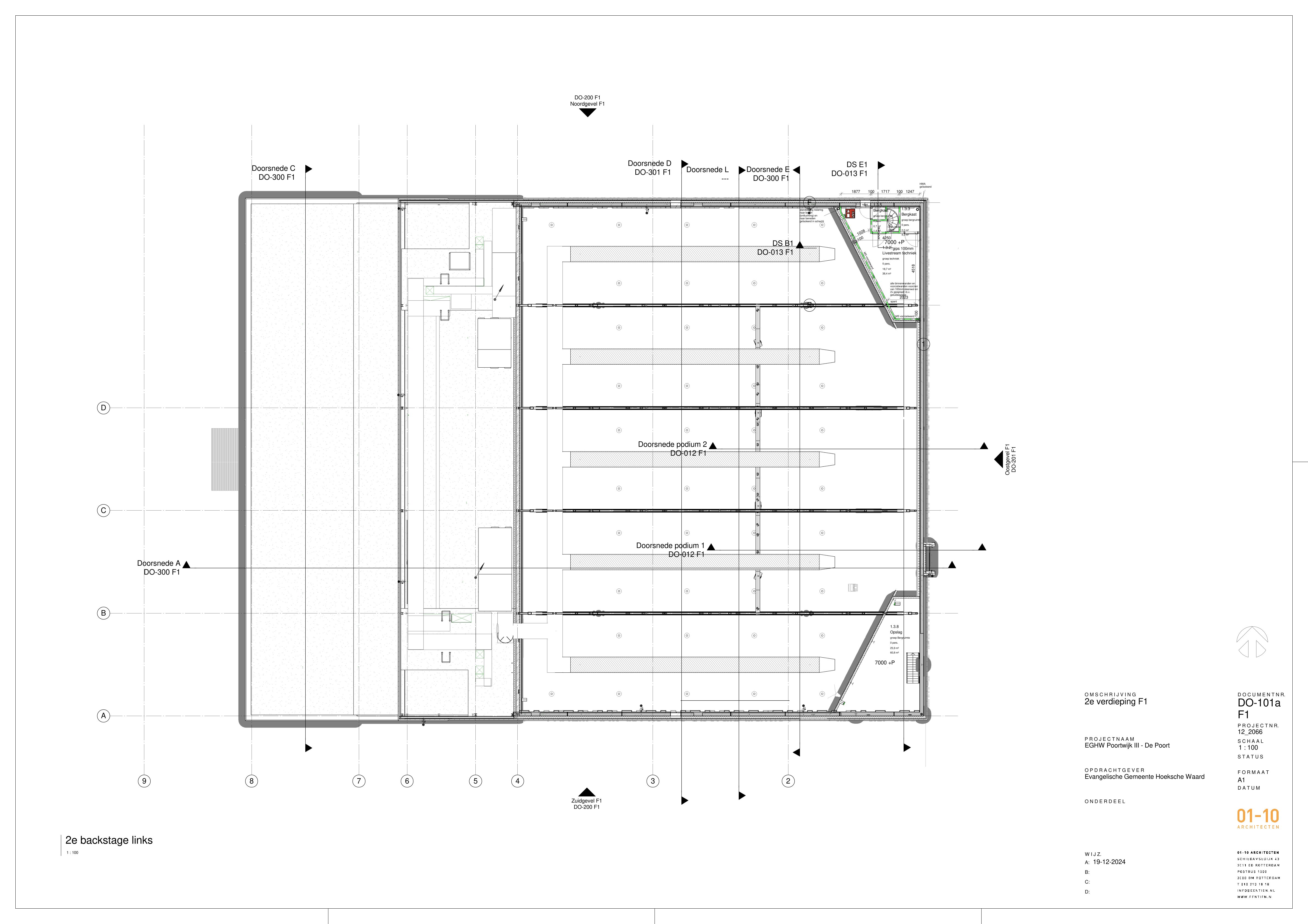
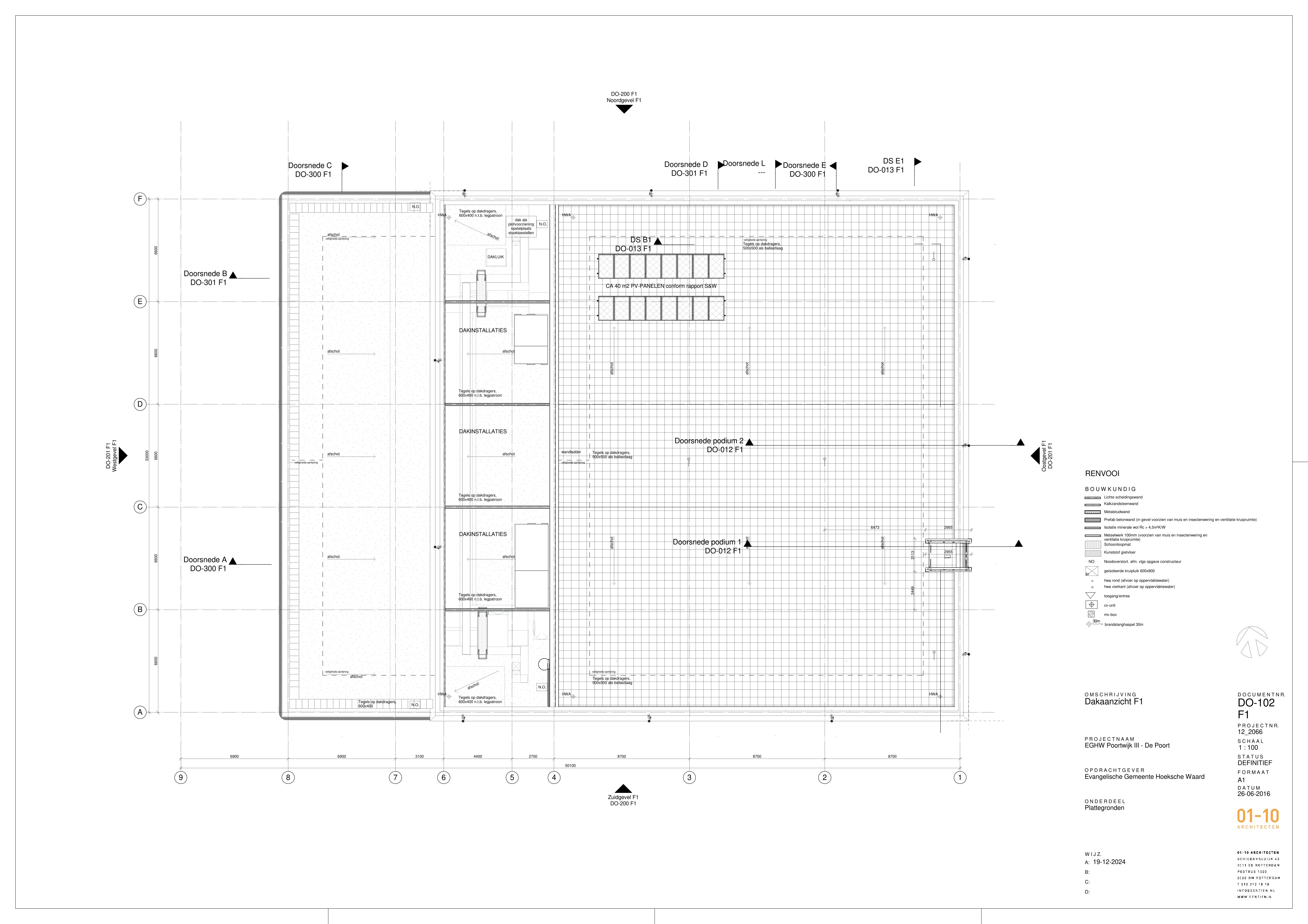
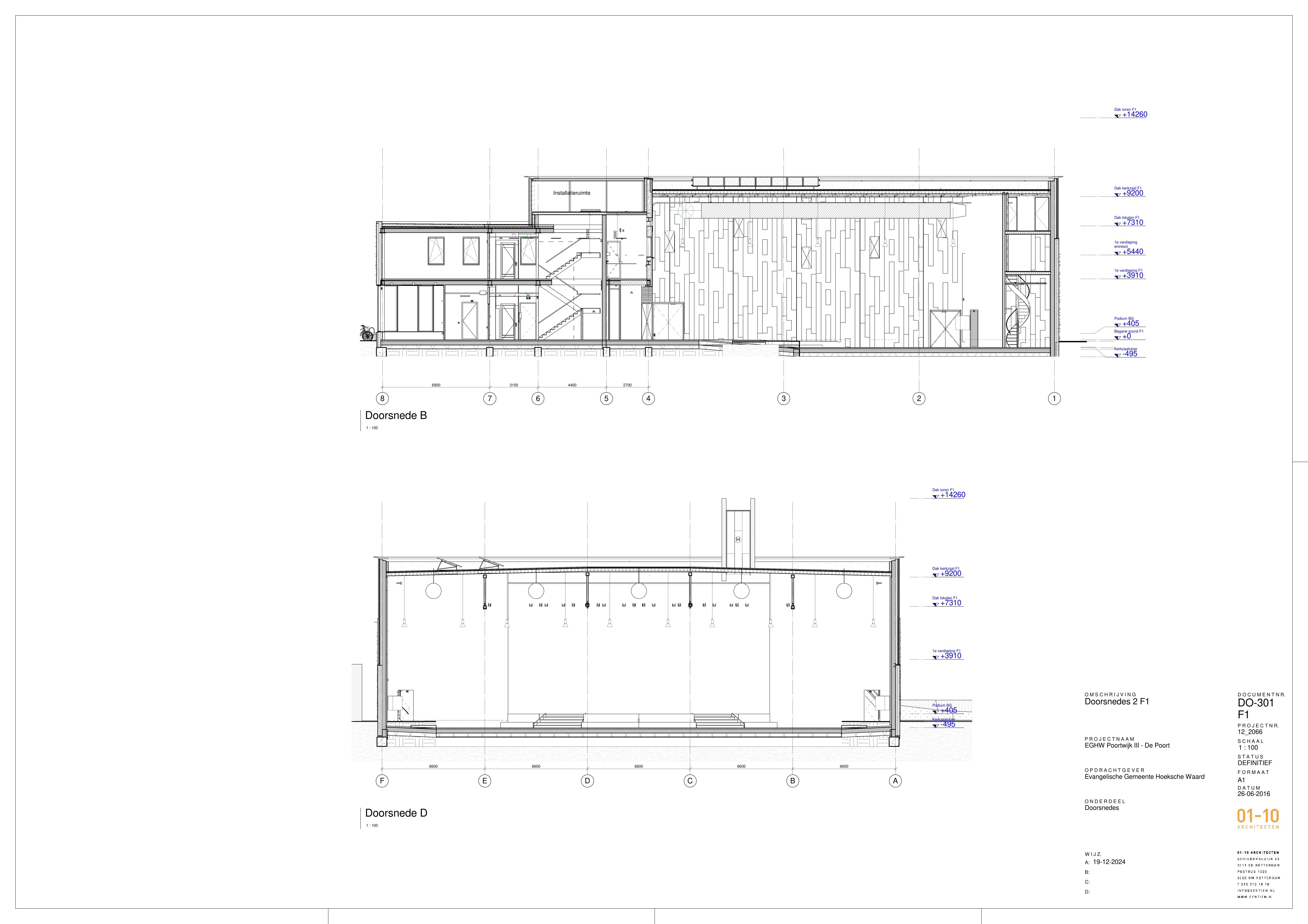
EGHW De Poort is een kerkgebouw voor de Evangelische gemeente Hoeksche Waard en samen met Eentien architecten ontwikkeld. Het gebouw is een functioneel gebouw met een grote zaal voor 1000 zitplaatsen, een foyer en acht lokalen en jeugdhonk.
Het ontwerp is een co-productie met Eentien architecten.
Het Revit tekenwerk is van af het ontwerp tot en met DO+ grotendeels door RU bouwdesign uitgevoerd. In opdracht van de aannemer heeft Eentien architecten het UO tekenwerkvericht. Specifieke intereieurdetails zijn verder door RU bouwdesign vervaardigd.
ontwerp
Eentien Architecten & RU bouwdesign
Project-management
RU bouwdesign
BIM tekenwerk
RU bouwdesign 01-10 Architecten
Opdrachtgever
Evangelische gemeente Hoeksche Waard
Oppervlakte / volume
1.995 m² / 10.669 m³
Locatie
Oud-Beijerland, NL
Oplevering
2018
Dienstverlening
Projectrollen
Vanuit de leiding van de EGHW is het mandaat aan een bouwcommissie gegeven om dit project te ontwikkelen. Als voorzitter van de bouwcommissie ben ik betrokken geweest als projectleider, BIM tekenaar, en medeontwerper. Het project is als in een UAV-gc contractvorm aanbesteed. Daarnaast is een grote hoeveel werkzaamheden door de kerkleden zelf uitgevoerd onder begeleiding van de bouwcommissie.
Bijzondere kenmerken
Omschrijving
Spanwand detail
Het onderdetail bestaat uit een buisprofiel achter een L-profiel. Het doek loopt om het L-profiel om zo een strakke onderlijn te vormen.






















































