Villa Heerjansdam
In opdracht van Aannemersbedrijf van Alphen is het interieurontwerp van Yume Atelier (Mariska Jagt) doorontworpen en als conceptontwerp bij de gemeente ingediend. Helaas is het project daarna door de opdrachtgever stilgezet.
Het ontwerp is in samenwerking met Yume Atelier doorontwikkeld.
Het ontwerp is door RU bouwdesign in samenwerking met Yume Atelier doorontwikkeld naar een concept DO ontwerp met BIM Revit. De coördinatie met de gemeente en de betrokken partijen is ook door RU bouwdesign verzorgd.
RU bouwdesign heeft het schetsontwerp doorontwikkeld en in 3D uitgewerkt en gevisualiseerd.
Ontwerp
Co-productie Yume Atelier / RU bouwdesign
Project-management
RU bouwdesign
BIM tekenwerk
RU BOUWDESIGN
Opdrachtgever
Particuliere klant / Aannemersbedrijf van Alphen / Yume Atelier
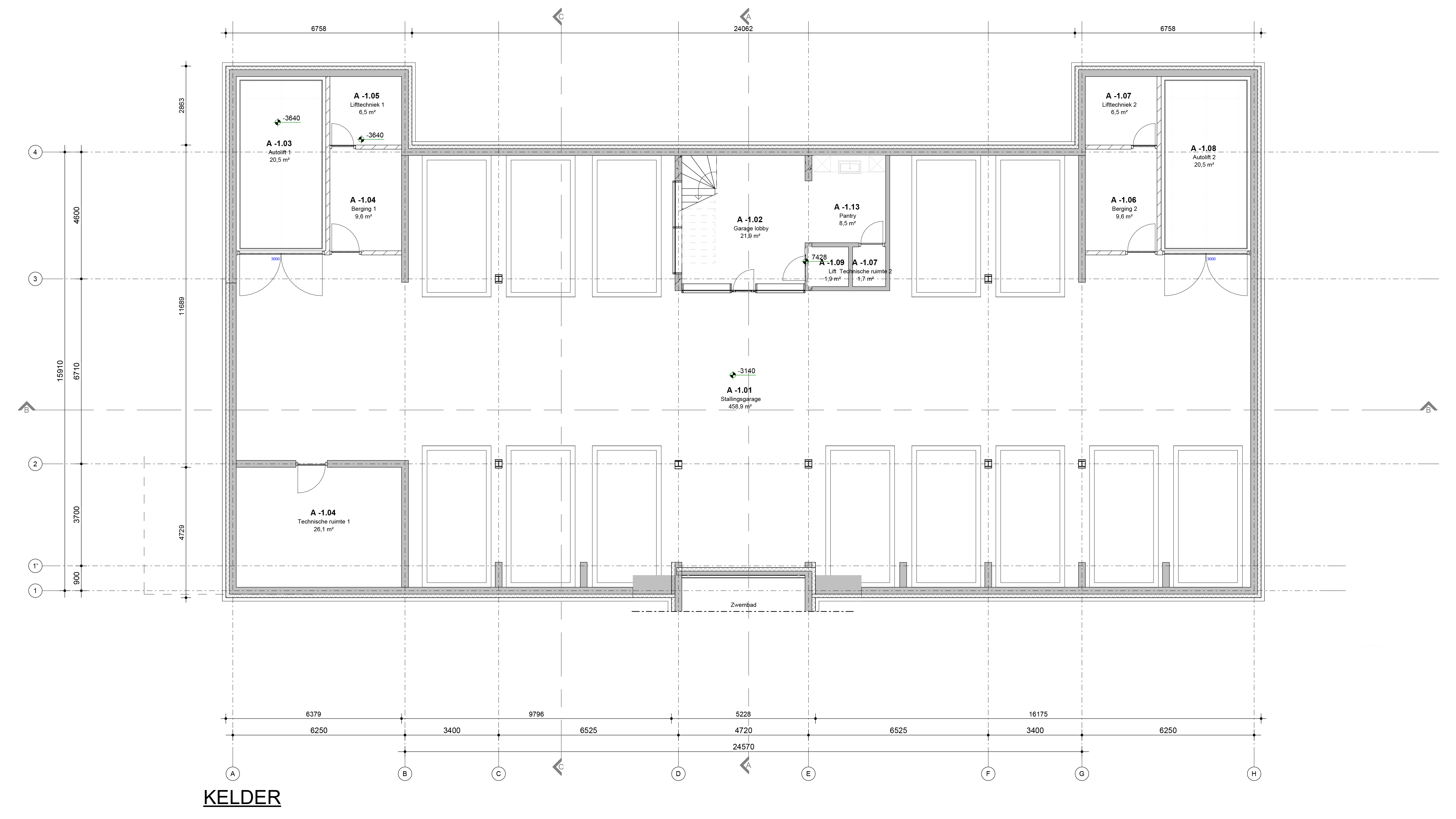
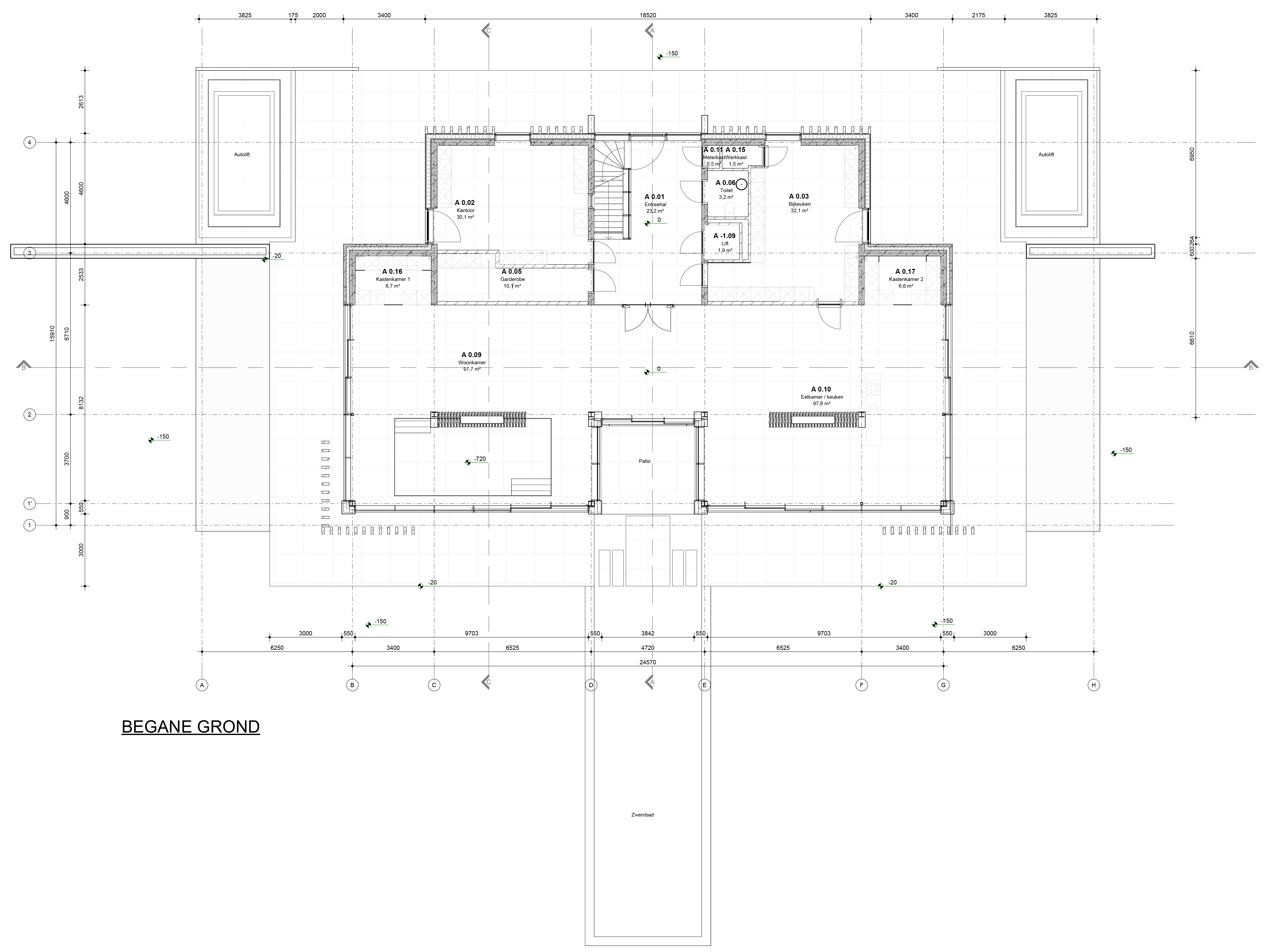
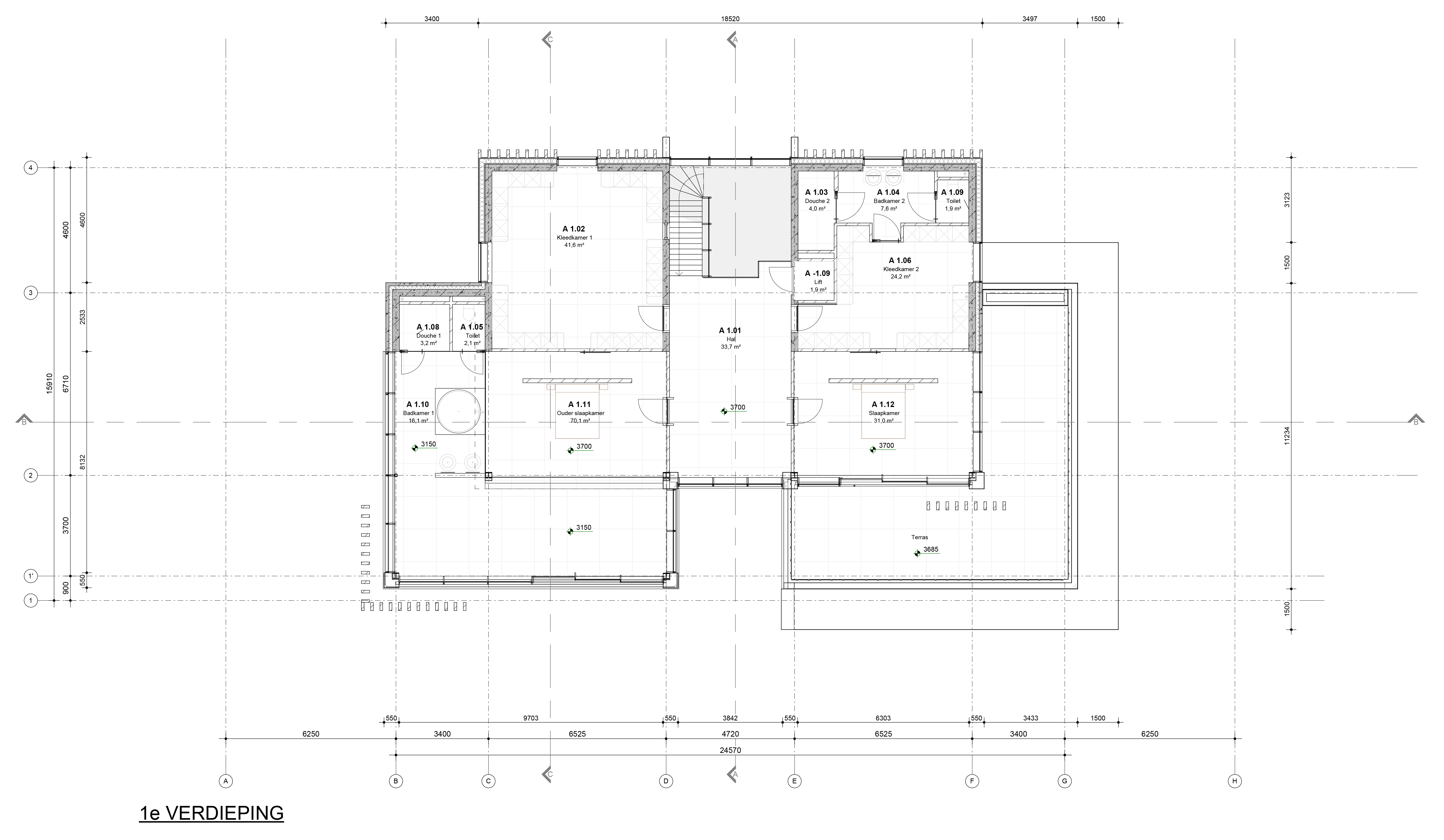
Oppervlakte / volume
woning 1137m² / 3251m³
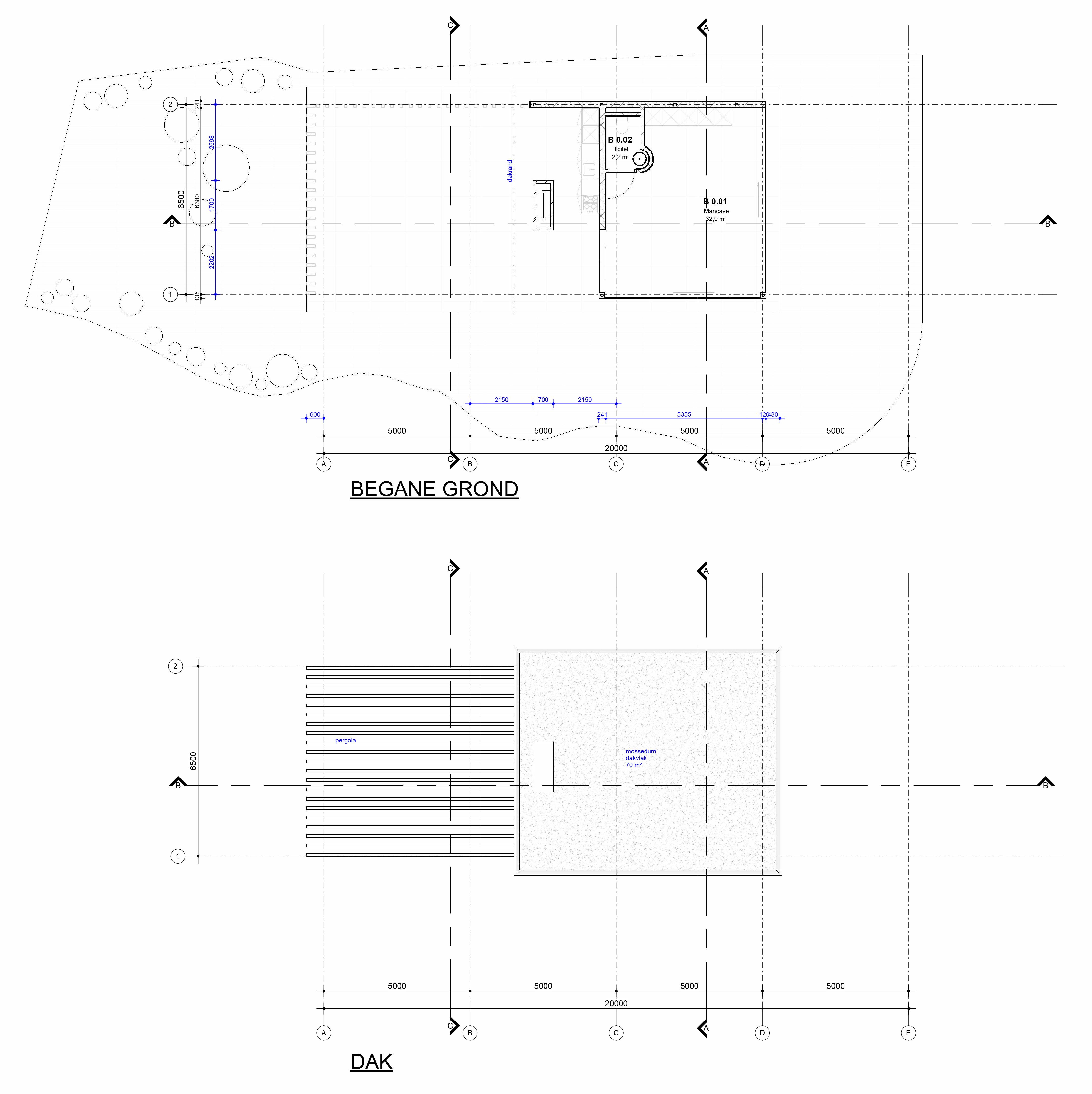
poolhouse 35m² / 100m³
carport 93m² / 307m³
Locatie
Heerjansdam, NL
Oplevering
-
Dienstverlening
Projectrollen
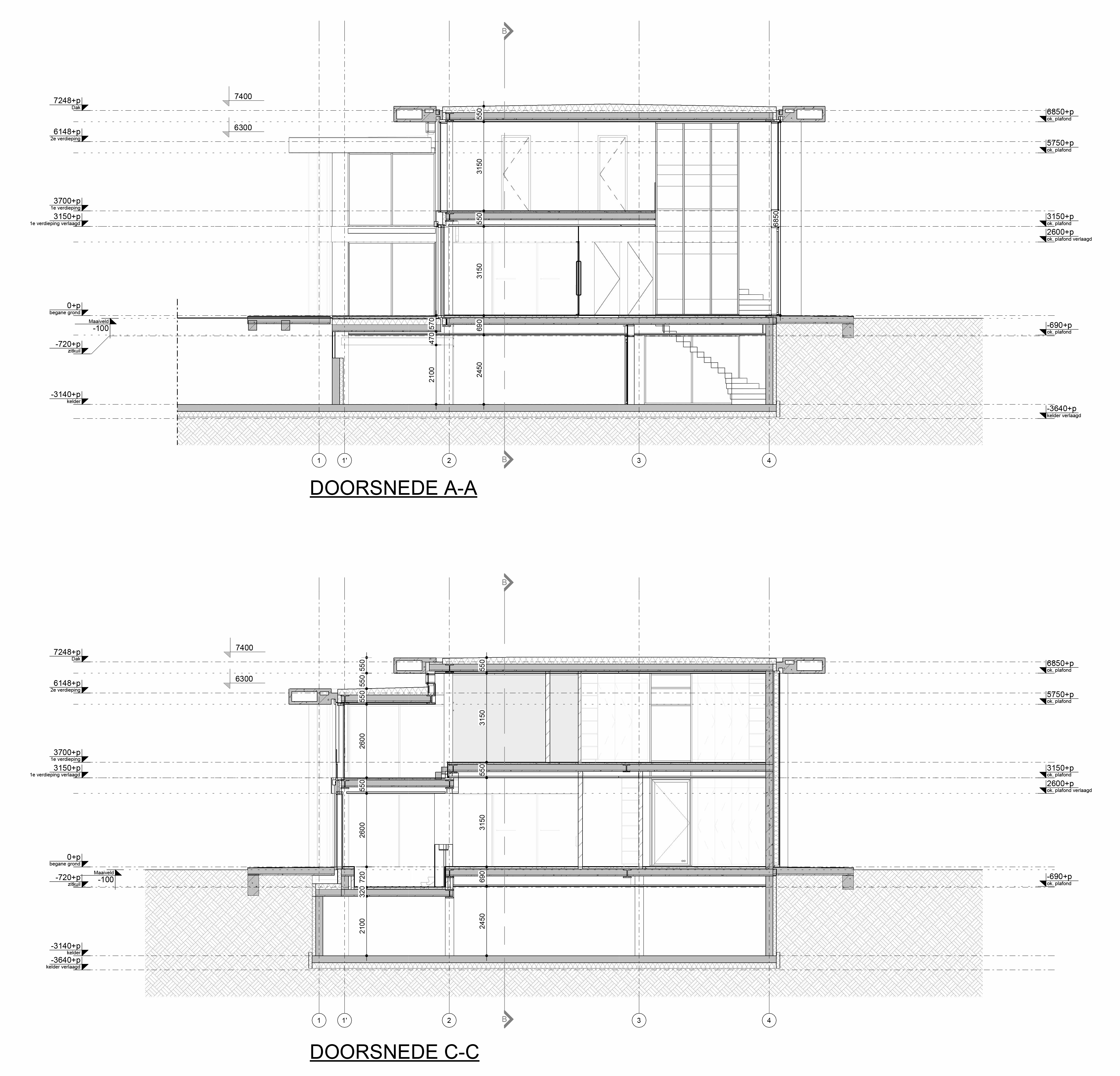
Het interieurontwerp moest doorontwikkeld worden om aan de bouwkundige eisen te voldoen. Dit is in Revit 3D uitgewerkt als tekenpakket. Het resultaat is als conceptvergunning ingediend bij de gemeente waarbij enig constructieadvies en installatieadvies is meegenomen.
Visie
Luxe en ruimte met zicht op het Waaltje
Met twee woonlagen en een stallingsgarage op kelderniveau voorziet de woning in veel ruimte met een royale vrije hoogte. 13 parkeerplaatsen en twee autoliften voorzien in alle behoeftes voor de autoliefhebber. Aan de voorzijde van de woning is met een carport voorzien in drie parkeerplaekken voor het dagelijks gebruik.
De landschappelijke achtertuin is gericht op het Waaltje met een eigen haven en poolhouse. De haven is visueel verlengd met een zwembad naar de woning.
Bijzondere kenmerken
Een kern met een schil
Het gebouw opent zich op een compacte wijze met een kern en twee armen naar de natuur. Met een centrale hal en centrale voorzieningen in de kern en lokalen in de armen ontstaan er omsloten ruimtes welke de jongeren beschermen van de buitenwereld en de harde Zuid Afrikaanse wind.




































































