Meadow House Maasland
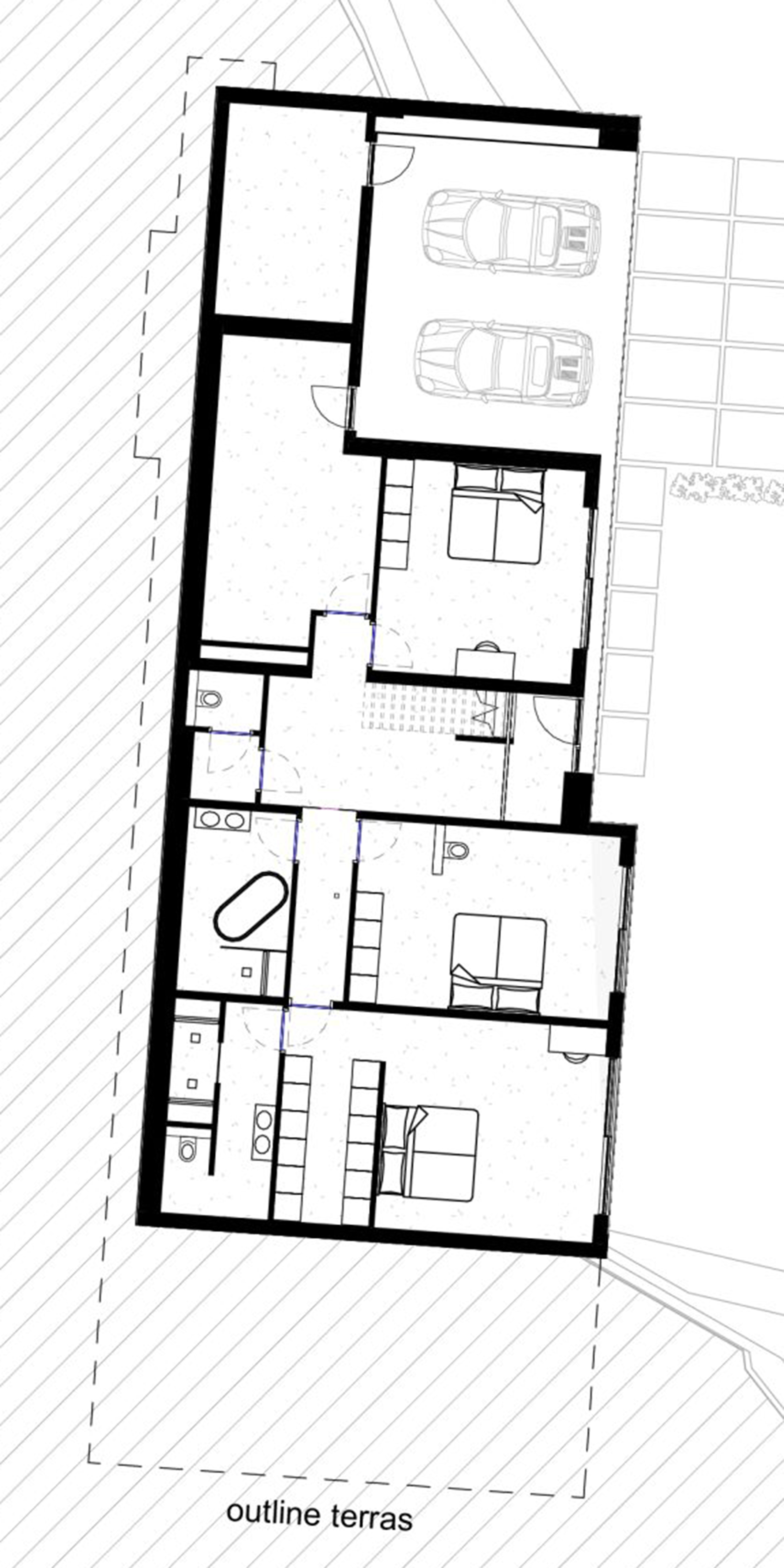
Langs deen dijk in de polders van Maasland stond een oude woning welke verbouwd is naar een nieuw schitterend pareltje. Het souterrain is hergebruikt met slaapvertrekken, sanitair, berging en garage. Op dijkniveau is een nieuwe leefverdieping gerealiseerd met aan weerszijde zicht op het unieke polderlandschap. (status Bijzonder Provinciaal Landschap) Met deze verbouwing voldoet de woning zowel in comfort als in duurzaamheid aan de moderne eisen.
RU bouwdesign heeft het ontwerp van JURY! voor de opdrachtgever uitgewerkt naar een TO en dit getekend in Revit BIM.
Fotograaf: Aiste Rakauskaite

Ontwerp
JURY!
Project-management
-
BIM tekenwerk
RU BOUWDESIGN
Opdrachtgever
Eigenaar
Oppervlakte / volume
370m² / 841m³
Locatie
Maasland, NL
Oplevering
2024
Dienstverlening
Projectrollen
De stap van ontwerp naar bouw vergt een nauwkeurige uitwerking van een ontwerp als dit, om het detail perfect te krijgen. RU bouwdesign heeft het tekenwerk tot op de milimeter nauwkeurig uitgewerkt zodat materialen op de juiste lijnen op elkaar aansluiten en het gewenste architectonische beeld crëeren.
Ontwerp
Landschapsgerichte geëxtrudeerde leefruimte
De bovenbouw is vormgegeven als een geëxtrudeerde tunnel, bekleed aan de buitenzijde met 3 maten Padoek houten delen. Een selectie nauwkeurig gemaatvoerde kleinere ramen zijn aan de zuidgevel geplaatst terwijl de noordgevel met grote glazen schuifpuien met openheid gericht is op de polder. Een hoogwaardige verdeling van meubelelementen en wanden verdelen de open leefruimte.
































